Evans Building Valletta

Project: Refurbishment Evans Building Valletta
Location: Valletta, MALTA
Client: DB Group
Our scope: full structural design
Status: Design Stage
.
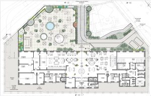
The building was constructed in 1952 over an area of approximately 3,327 square metres and has a built-up footprint of around 1080 square metres per story. It was originally built to house university laboratories but was later converted into a variety of government offices. It is now necessary to develop the building into upmarket tourism accommodation.

 

 

 

Get A Quote

Give us a call or fill in the form below and we will contact you. We endeavor to answer all inquiries within 24 hours on business days.